客戶谘詢熱線:18944828889
0523-84888996
帶式羞羞软件下载-大型全自動立式羞羞软件下载
帶式羞羞软件下载-大型全自動立式羞羞软件下载
帶式羞羞软件下载-大型全自動立式羞羞软件下载
帶式羞羞软件下载-大型全自動立式羞羞软件下载
帶式羞羞软件下载-大型全自動立式羞羞软件下载
|
|
|
型號 |
DYJ-3 |
DYJ-5 |
DYJ-10 |
DYJ-20 |
|
|
|
|
|
生產能力 |
1-3 |
3-5 |
5-10 |
10-20 |
|
|
|
|
|
濾帶線速度 |
5 |
5.7 |
7.95 |
6.3 |
|
|
|
|
|
主傳動速度 |
11 |
9.5 |
11 |
8.2 |
|
|
|
|
|
主機功率 |
1.5 |
3 |
4 |
5.5 |
|
|
|
|
|
衝洗泵功率 |
11 |
7.5 |
15 |
30 |
|
|
|
|
|
衝洗泵流量 |
50 |
16 |
16 |
32 |
|
|
|
|
|
衝洗泵揚程 |
32 |
94 |
189 |
378 |
|
|
|
|
|
回流泵功率 |
2.2 |
5.5 |
5.5 |
5.5 |
|
|
|
|
|
回流泵流量 |
12.5 |
25 |
25 |
25 |
|
|
|
|
|
回流泵揚程 |
20 |
32 |
32 |
32 |
|
|
|
|
|
布料輪功率 |
|
0.37 |
0.37 |
0.37 |
|
|
|
|
|
壓縮空氣耗用量 |
1m3/h |
|
|
|||
|
|
|
壓縮空氣壓力 |
0.6MPa |
|
|
|||
|
|
|
進料口高度 |
1160 |
1840 |
2045 |
1920 |
|
|
|
|
|
榨帶尺寸 |
7780×800 |
11170× 1200 |
14300×1750 |
16800×2500 |
|
|
|
|
|
外形尺寸 |
3100×1475×1820 |
3940×2085×2430 |
5000×2780×2560 |
5420×3430×2420 |
|
|
本機是利用多個壓輥對進入濾網中的物料進行壓榨。該機自動進出料,連續工作,壓榨充分,出汁率高,渣含水率低等特點,廣泛應用於果蔬類取汁工藝流程中。
一、概述
A 產品特點、用途
該機為我公司消化吸收國外先進的帶式羞羞软件下载精心研製而成,具有節能、自動進出料、連續工作、壓榨充分,濾餅含水率低等特點,廣泛適用於果蔬類取汁、環保工藝流程中。用於蘋果類榨汁,出汁率高達75-78%,較國產原有其它機型提高35%。
二、結構特征與工作原理
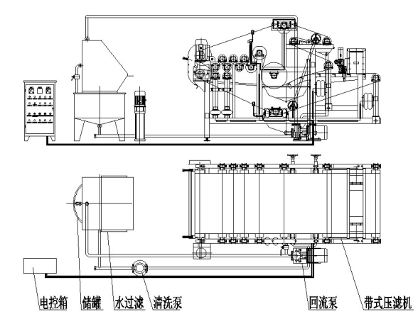
見附圖一,該機由機架、上下驅動軸、減速驅動總成,壓輥組合、壓濾帶、清洗帶組件、進料組件、漲緊裝置、帶糾偏組件、增壓裝置、安全保護裝置、氣壓控製部件、清洗水過濾裝置等組成。
電機由變頻器指揮無級變速,可實現連續平穩的恒功率調速。壓榨帶為尼龍絲經緯編織而成,具有耐酸堿、符合食品衛生,易出汁、不吸水、高強度的特點。
壓輥:按物流走向,所接觸的壓輥半徑減小、曲率漸大。L型壓輥結構獨特合理,各種壓輥的配置,有不鏽鋼輥、搪膠輥,大小分配合理。
壓榨帶的漲緊采用氣囊衝氣自動漲緊,不但平穩而且避免過載,安全可靠,並配置壓力繼電器,可自動安全停機,實現全過程自動化。
壓榨帶的清洗采用螺旋麵(弧形)過濾篩自動過濾、排渣,配有高壓泵及噴射裝置,能方便地邊過濾邊清洗壓濾帶,使該機具有良好的和出汁效果,且節約能源。
工作原理:(見附圖二)經過細化的原料(固液混合物)由螺杆泵連續泵入進料鬥中(物料占帶寬可調節),由壓料輥分布均勻。在下彎的楔形區內,大量水分被緩慢地壓出,形成可壓榨的濾餅,在壓榨去,一個帶L型壓條的壓輥將水份壓出,並保證水份很快從兩邊溢出,以後的壓輥直徑遞減,濾帶呈S型,產生遞增的表麵壓力與剪切力,保證了較佳脫水效果,為了進一步提高脫水率,再另加一個能產生線性壓力和周邊壓力的壓輥。脫水後的濾餅由耐磨型料刮板刮下,兩條濾帶均由高壓噴嘴不斷衝洗,以保證持續的高壓效果。噴洗水通過回流泵經弧形過濾網自動過濾、排渣、循環使用,節約能源。
三、安裝、調整
1、壓榨機兩側空間不得小於2.5m。
2、吊裝過程中,不得以壓輥承載。
3、定位後用水平儀校平,固定支承座。
4、逐一檢查各壓輥是否運轉靈活。
5、給每個壓輥添加規定的潤滑脂。
6、檢查各個水槽是否安裝牢固。
7、接通各種動力及控製電器設備,安裝各液位、料位控製電器。
8、通電設備分別試車,泵轉向見轉向牌。
9、試氣路是否正確。
10、試運轉,並反複試用安全停車是否有效,帶糾偏裝置是否有效。
11、切斷電源,清洗全機,安裝壓濾帶不得有妨礙帶運轉的障礙。
12、衝氣脹緊。
13、加水正式試機。
14、試車空轉不得少於3次,每次為3小時。
15、再次檢查無誤時,可正式投料連續生產。
16、停車:空運載清洗,保持機內外、特別是各壓輥及壓濾帶潔淨,切斷電源氣源。
17、定期對設備進行檢查,定期對各潤滑部位加進潤滑脂。
四、生產操作規程
1、儲罐內注滿清水。
2、啟動空壓機,達到規定壓力備用(氣壓0.7Mpa,耗量1m3/h)。
3、關閉放氣閥,打開進氣閥,調節4隻增壓閥,漲緊上下帶,壓力表壓力為0.2-0.3Mpa,上帶使用壓力略低於下帶,糾偏壓力0.4Mpa,加壓輥壓力為0.35-0.4Mpa。
4、開啟主動力(主軸轉速控製在8r/min),開啟布料輥、清洗泵、帶集水槽有一定水量後開啟回流泵。
5、啟動進料泵或升運機。
6、生產過程中視儲槽中水容量,適時補充清水。
7、停機時關閉進料泵或升運機,空載清洗上下帶,帶清洗完畢後關閉清洗泵、回流泵。噴洗轉動的布料輥及除壓濾帶以外的其他部位,保持機內外潔淨,關閉電源、氣源,打開放氣閥。
五、維護保養
1、定期對設備進行檢查,定期對各潤滑部位注入潤滑脂(如軸承部位、齒輪部位)。
2、適時往減速機內注入潤滑油。主動力為無級變速機時,必須加入ub-1牽引液(詳見機上標牌指示)。
特別警告
▲所有泵嚴禁無料空轉、反轉!
▲主機嚴禁無氣空轉、反轉!
▲嚴禁有異物進入壓濾帶、壓輥之間!
▲自動進放氣開關(閥門)在無氣工作狀態下不得長時間工作(限10分鍾)!
帶式羞羞软件下载結構示意圖
1、機架 2、下驅動軸 3、上驅動軸 4、無級變速器
5、帶糾偏機構 6、壓濾帶 7、清洗帶組件 8、進料件
9、脹緊部件 10、壓輥組合 11、增壓裝置
帶式羞羞软件下载工作原理圖
DYJ型帶式羞羞软件下载係統示意圖
轉閥安裝使用說明及結構示意圖
一、安裝與使用
1、將閥體固定在支架上。
2、將糾偏擋板裝入緊固件,作初步緊固。
3、將緊固件安裝在閥心軸上,與閥體端麵保持2mm間距,注意軸銼口處向上,與閥體中心線相平行,嚴禁錯位,鎖緊緊固件。
4、接通總進氣,接通氣囊氣管,打開氣閥供氣,用手緩慢移動糾偏擋板,看氣囊與氣管安裝是否同步,不同步兩氣管互換。
5、根據具體工作狀況,及時進退調整糾偏擋板前後位置,也可將支架整體移動,調整至較佳位置堅固。
6、糾偏擋板必須與網帶始終保持接觸,重心向網帶一邊可作小範圍調整,但必須注意軸上銼口方向始終向上,與閥體中心線相平行。
二、結構示意圖
1、 左閥體 2、擋板 3、銼口 4、軸 5、緊固件 6、右閥體
友情鏈接LINK
關於羞羞的网站免费看
企業簡介聯係羞羞的网站免费看案例展示產品中心
榨汁設備男女生打扑克羞羞视频免费网站設備破碎設備椰子加工設備去籽、去核、去梗設備輸送設備查看更多+新聞資訊
視頻案例分享公司新聞行業資訊常見問題解決方案
蘋果、梨加工羞羞视频APP在线观看橙子、檸檬、柑橘加工羞羞视频APP在线观看新會柑果球加工羞羞视频APP在线观看桃子、李子、杏子加工羞羞视频APP在线观看番茄醬加工羞羞视频APP在线观看芒果加工羞羞视频APP在线观看梅幹菜、酸菜、鹹菜加工羞羞视频APP在线观看菠蘿加工羞羞视频APP在线观看百香果、西番蓮加工羞羞视频APP在线观看藍莓、樹莓、草莓加工羞羞视频APP在线观看紅棗、山楂加工羞羞视频APP在线观看葡萄加工羞羞视频APP在线观看沙棘果加工羞羞视频APP在线观看刺梨加工羞羞视频APP在线观看枇杷加工羞羞视频APP在线观看果蔬處理專題
榨汁設備專題男女生打扑克羞羞视频免费网站設備專題破碎設備專題去籽去核去梗設備輸送設備專題清洗設備專題過濾設備專題果汁羞羞视频APP在线观看專題微信二維碼
手機網站


江蘇羞羞的网站免费看機械製造有限公司 版權所有 備案號:蘇ICP備44033316號 技術支持:【新超雲網絡】【Sitemap】